私募

 找回密码
 立即注册
搜索
热搜: 活动 交友 discuz

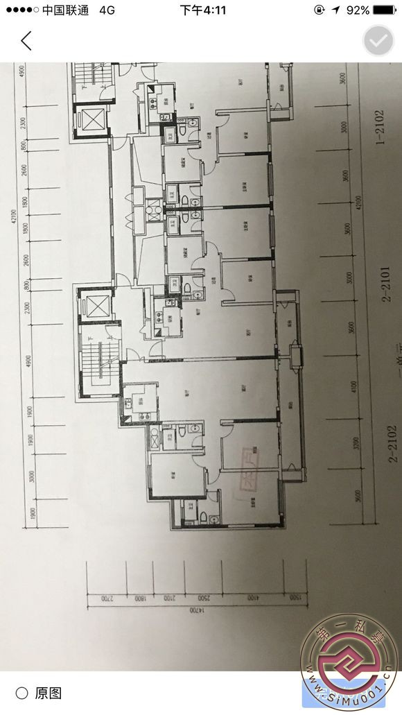
不炒股了,买房子了,请各位大哥看下,这户型楼层怎么样?还有怎

[复制链接]
发表于 2019-6-8 08:34:19 | 显示全部楼层 |阅读模式
不炒股了,买房子了,请各位大哥看下,这户型楼层怎么样?还有怎么样装修好,怎么样把格局改成1个大主卧3个小卧室 不炒股了,买房子了,请各位大哥看下,这户型楼层怎么样?还有怎-1.jpg
$ T2 p2 v/ B7 D. q4 n5 b7 U 不炒股了,买房子了,请各位大哥看下,这户型楼层怎么样?还有怎-2.jpg
http://www.simu001.cn/x102768x1x1.html
最好的私募社区 | 第一私募论坛 | http://www.simu001.cn

精彩推荐

回复

使用道具 举报

发表于 2019-6-8 08:34:53 | 显示全部楼层
我是二楼
回复 支持 反对

使用道具 举报

发表于 2019-6-8 08:35:20 | 显示全部楼层
总楼层22楼,我买的21楼,2剃4户,我是西灿
回复 支持 反对

使用道具 举报

发表于 2019-6-8 08:35:33 | 显示全部楼层
多少一平方?
回复 支持 反对

使用道具 举报

发表于 2019-6-8 08:36:12 | 显示全部楼层
CAD版本有吗,我做设计师一年多了,可以帮你看看,梁的位置和标高最好也在图纸上表示一下
回复 支持 反对

使用道具 举报

发表于 2019-6-8 08:36:45 | 显示全部楼层
不炒股了,买房子了,请各位大哥看下,这户型楼层怎么样?还有怎-1.jpg 要哪么多房间做什么,像俺二室一厅一个房间也空着没啥用。像俺觉的二个洗手间不错,如果有女友最好一人一个洗手间,有些不喜欢洗手间多的俺看到把像你哪样的主卧室的洗手间给换成了衣帽间。。。6 V8 L0 @$ v9 Q6 ^( X7 u, G
   改房间不懂,俺不是搞哪行的,但是吧里不是有人在装修, 有人是搞设计的问问他们吧。
回复 支持 反对

使用道具 举报

发表于 2019-6-8 08:36:54 | 显示全部楼层
开发商的家具尺寸都偏小的,方案看着挺漂亮,实际上是骗骗人的
回复 支持 反对

使用道具 举报

发表于 2019-6-8 08:37:10 | 显示全部楼层
这是俺画的图纸" }3 x2 {: t: }( G& C
不炒股了,买房子了,请各位大哥看下,这户型楼层怎么样?还有怎-1.jpg ! ~: s7 j( w+ u* a3 X! Z  j
不炒股了,买房子了,请各位大哥看下,这户型楼层怎么样?还有怎-2.jpg * R9 C6 F8 w' v) N, e
不炒股了,买房子了,请各位大哥看下,这户型楼层怎么样?还有怎-3.jpg
6 r9 C+ j- }+ J/ U# `6 X 不炒股了,买房子了,请各位大哥看下,这户型楼层怎么样?还有怎-4.jpg
回复 支持 反对

使用道具 举报

发表于 2019-6-8 08:37:15 | 显示全部楼层
不炒股了吗,那吧主之位能不能让我当当,哈哈哈 不炒股了,买房子了,请各位大哥看下,这户型楼层怎么样?还有怎-1.png
回复 支持 反对

使用道具 举报

发表于 2019-6-8 08:37:44 | 显示全部楼层
这不是从一个坑跳到另外一个坑吗 不炒股了,买房子了,请各位大哥看下,这户型楼层怎么样?还有怎-1.png
回复 支持 反对

使用道具 举报

您需要登录后才可以回帖 登录 | 立即注册

本版积分规则

QQ|手机版|Archiver| ( 桂ICP备12001440号-3 )|网站地图

GMT+8, 2025-12-16 06:03 , Processed in 3.747086 second(s), 35 queries .

Powered by www.simu001.cn X3.4

Copyright © 2001-2021, Tencent Cloud.

快速回复 返回顶部 返回列表